Ga naar inhoud

Te koop: appartement Ratelaar 29 3434 EV Nieuwegein

Moen Garantiemakelaars
Contact me

Verkocht

€ 285.000,- k.k.

Aantrekkelijk 2- kamerappartement gelegen boven kleinschalig winkelcentrum ‘Hoog Zandveld’.

De wijk Hoog Zandveld kenmerkt zich door veel groen met onder andere Park Oudegein en centrale ligging nabij openbaar vervoer (bus en tram), oude kern Vreeswijk, Lekdijk en de uitvalswegen.
Het appartement kenmerkt zich door een ruime woonkamer en ruime slaapkamer in combinatie met een gunstige lichtinval waardoor een prettig woonklimaat is verkregen.

Dit in 1978 gebouwde appartement is voorzien van dak- en muurisolatie alsmede (gedeeltelijk) van dubbele beglazing. Verwarming middels blokverwarming en is het energielabel C. Het woonoppervlak bedraagt ca. 65m2. De privé berging met elektra bevindt zich op de begane grond. De maandelijkse servicekosten bedragen € 217.24 en zullen binnenkort worden verhoogd met € 150,- in verband met verduurzaming (nieuwe kozijnen en dubbele beglazing)
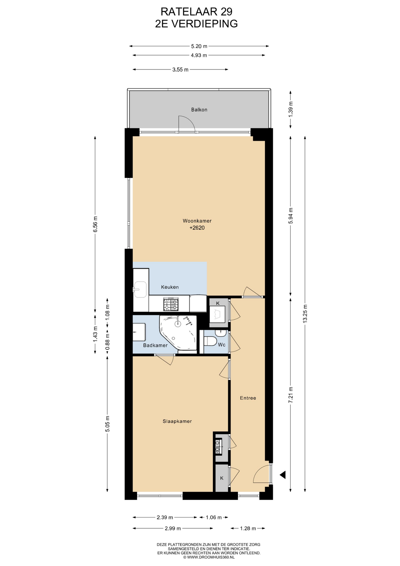
Een afgesloten centrale hal met liftinstallatie geeft toegang tot de verdieping waar de woning is gelegen.
Indeling: hal met meterkast, toilet, wasruimte en grote slaapkamer met directe toegang tot de nette badkamer met wastafel in meubel en ligbad. Het einde van de hal geeft toegang tot de ruime woonkamer met groot zijraam en open keuken. De keuken is voorzien van een eenvoudige keukeninrichting. Het balkon is bereikbaar vanuit de woonkamer.

Kenmerken:
• Ruim appartement
• Raampartijen zorgen voor veel licht
• Grote woonkamer
• Grote slaapkamer
• Complete badkamer
• Ruim balkon
• Geheel met laminaatvloeren
• Energielabel C
• Centrale ligging
• Liftinstallatie
• Notariskeuze verkoper

  • 65 m2
  • 1

Features Ratelaar 29

Overdracht

Vraagprijs€ 285.000,- k.k.
AanvaardingIn overleg

Oppervlaktes en inhoud

Woonoppervlakte65 m2
Inhoud217 m3

Bouw

SoortGalerijflat
BouwvormBestaande bouw
Bouwjaar1978
Dak typeSamengesteld dak
IsolatievormenGedeeltelijk dubbelglas
EnergielabelC

Indeling

Aantal verdiepingen1
Aantal kamers2
Aantal slaapkamers1
Aantal badkamers1

Monthly costs

Location Ratelaar 29

Voorzieningen

Centraal gelegen informatie over de buurt

Aantal inwoners

In de gemeente

61.868

Leeftijd

in percentages van totaal

Huishoudsamenstelling

in percentages van totaal

24%

20% NL

35%

20% NL

40%

20% NL

Comparable listings