€ 430.000,- k.k.
Modern 3-kamerappartement met eigen parkeervoorziening in het gezellige stadshart gelegen!
Dit mooie appartement heeft een ruime en praktische indeling en heeft een vrij zicht over het stadshart.
Er is een ruim terras welke op het zuiden is gesitueerd, eigen berging alsmede een eigen parkeerplaats in ondergelegen parkeerkelder. De gezamenlijke fietsenstalling bevindt zich op straatniveau.
Het Stadshart in Nieuwegein biedt ontzettend veel gemak. U bevindt zich hier namelijk te midden van talrijke voorzieningen zoals supermarkten, diverse winkels van City Plaza, restaurants, gezellige terrasjes, het theater, het stadshuis, de bibliotheek en het openbaar vervoer.
Nieuwegein is qua bereikbaarheid ideaal aangezien het centraal in Nederland ligt. De A2, de A12 en de A27 zorgen voor een uitstekende bereikbaarheid met de auto. Met de sneltram bent u binnen 20 minuten in het centrum van Utrecht, maar is ook per fiets goed bereikbaar.
Het bouwjaar is 2012, volledig geïsoleerd en voorzien van kunststof ramen en kozijnen (draai-/kiep) met dubbele beglazing. Verwarming middels vloerverwarming via stadsverwarming. Het woonoppervlak bedraagt ca. 86 m2. Het moderne complex wordt beheerd door een actieve VvE. De maandelijkse servicekosten bedragen € 186,- voor de woning en € 39,- voor de parkeerplaats.
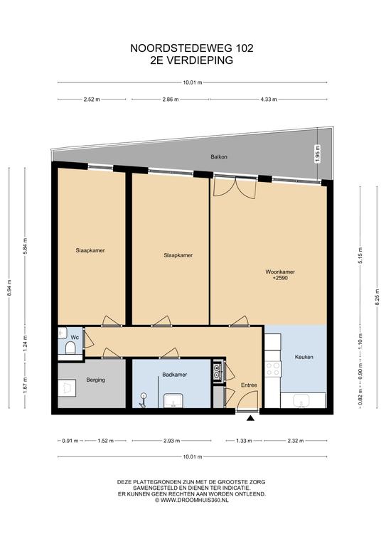
Een afgesloten centrale hal met dubbele liftinstallatie geeft via de daktuin toegang tot de woning welke op de derde verdieping is gelegen.
Indeling woning: ruime hal met meterkast, modern toilet, ruime badkamer voorzien van inloopdouche en wastafelmeubel, praktische inpandige berging en 2 grote slaapkamers. De hal geeft tevens toegang tot de woonkamer met openslaande deuren naar het ruime terras, aansluitend de half open keuken welke is voorzien van een moderne keukeninrichting in hoekopstelling en uitgerust met inbouwapparatuur. De gehele woning is voorzien van een laminaatvloer met vloerverwarming.
Kenmerken:
• Modern 3-kamerappartement
• Gezellige ligging in stadshart
• Ruime en praktische indeling
• Goede vloerafwerking met vloerverwarming
• Moderne en complete keukeninrichting
• Moderne en luxe badkamer
• Eigen parkeervoorziening
• Zonnig terras op het zuiden
• Vrij uitzicht
• Aparte berging
• Kunststof ramen-/kozijnen (draai-kiep)
• Volledig geïsoleerd
• Energielabel A+
- 86 m2
- 2
Features Noordstedeweg 102
Overdracht
| Vraagprijs | € 430.000,- k.k. |
|---|---|
| Aanvaarding | In overleg |
Oppervlaktes en inhoud
| Woonoppervlakte | 86 m2 |
|---|---|
| Inhoud | 260 m3 |
Bouw
| Soort | Portiekflat |
|---|---|
| Bouwvorm | Bestaande bouw |
| Bouwjaar | 2012 |
| Dak type | Plat dak |
| Isolatievormen | Dakisolatie, Muurisolatie, Vloerisolatie, Dubbelglas |
| Energielabel | A+ |
Indeling
| Aantal verdiepingen | 1 |
|---|---|
| Aantal kamers | 3 |
| Aantal slaapkamers | 2 |
| Aantal badkamers | 1 |
Monthly costs
Location Noordstedeweg 102
Voorzieningen
- Koningin Beatrixschool 427 m Bendienlaan 2729 NIEUWEGEIN
- Universiteit voor Humanistiek 7 km Kromme Nieuwegracht 29 UTRECHT
- ROC Midden Nederland 2 km Newtonbaan 12 NIEUWEGEIN
- Hogeschool voor de Kunsten Utrecht 8 km Nieuwekade 1 UTRECHT
- Universiteit voor Humanistiek 7 km Kromme Nieuwegracht 29 UTRECHT
Centraal gelegen informatie over de buurt
Aantal inwoners
In de gemeente
61.868
Leeftijd
in percentages van totaal
Huishoudsamenstelling
in percentages van totaal
58%
20% NL
25%
20% NL
16%
20% NL