€ 325.000,- k.k.
Zeer gunstig gesitueerd ruim opgezet 4-kamerappartement met 3 balkons!
Naast de 3 balkons beschikt het appartement over 3 ruim bemeten slaapkamers. Rustig gelegen direct nabij voorzieningen als winkels, scholen, kinderdagverblijf, openbaar vervoer zowel tram als bus, Park Oudegein, gezondheidscentrum en apotheek. Door de gunstige ligging ten opzicht van Rijkswegen A2 en A27 zeer goed bereikbaar.
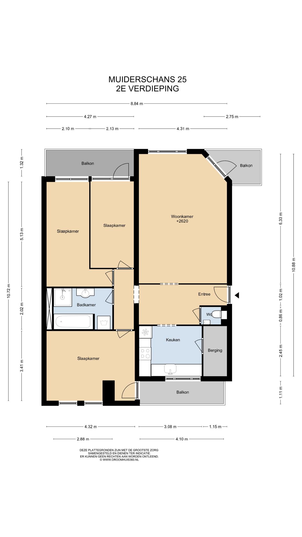
Dit keurige complex is in 1982 gebouwd en is de woning voorzien van dak- en muurisolatie alsmede van kunststof kozijnen met HR++ beglazing. Warmwater middels stadsverwarming. Het woonoppervlak bedraagt ca. 94 m2 en totaal ca. 14m2 aan buitenruimte. De maandelijkse servicekosten bedragen € 190,47. Privé berging op de begane grond.
Indeling:
Begane grond: een centrale afgesloten entree met intercom geeft toegang tot de woonverdieping.
Woonverdieping: Hal met modern hangend toilet (2024) met toegang tot de semi open keuken voorzien van keukeninrichting in hoekopstelling met diverse inbouwapparatuur, praktische bijkeuken. Deze hal geeft tevens tot de woonkamer welke aan de achterzijde is gelegen met deur naar het balkon op het westen. Zowel vanuit de woonkamer als vanaf dit balkon is er zicht op achtergelegen vijverpartij. Een 2e hal geeft toegang tot de 3 ruime slaapkamers waarvan 2 kamers met deur naar een eigen balkon. De keurige badkamer is uitgevoerd met wastafelmeubel, ligbad en douchecabine. De woning is vrijwel geheel voorzien van een keurige pvc vloer.
Kenmerken:
• Zeer ruime woning
• 3 balkons
• 3 ruime slaapkamers
• Kunststof kozijnen met HR++ beglazing
• Keurige vloerafwerking
• Keurige wandafwerking
• Zicht op vijverpartij
• Verwarming middels stadsverwarming
• Energielabel C
• Tram- en bushalte op loopafstand
• Supermarkt op loopafstand
• Park Oudegein op loopafstand
- 94 m2
- 3
Features Muiderschans 25
Overdracht
| Vraagprijs | € 325.000,- k.k. |
|---|---|
| Aanvaarding | In overleg |
Oppervlaktes en inhoud
| Woonoppervlakte | 94 m2 |
|---|---|
| Inhoud | 285 m3 |
Bouw
| Soort | Portiekflat |
|---|---|
| Bouwvorm | Bestaande bouw |
| Bouwjaar | 1982 |
| Dak type | Plat dak |
| Isolatievormen | Dakisolatie, Muurisolatie, Dubbelglas |
| Energielabel | C |
Indeling
| Aantal verdiepingen | 1 |
|---|---|
| Aantal kamers | 4 |
| Aantal slaapkamers | 3 |
| Aantal badkamers | 1 |
Monthly costs
Location Muiderschans 25
Voorzieningen
- De Schouw Basisschool 186 m Dintherseschans 30 NIEUWEGEIN
- Universiteit voor Humanistiek 8 km Kromme Nieuwegracht 29 UTRECHT
- ROC Midden Nederland 2 km Newtonbaan 12 NIEUWEGEIN
- Hogeschool voor de Kunsten Utrecht 9 km Nieuwekade 1 UTRECHT
- Universiteit voor Humanistiek 8 km Kromme Nieuwegracht 29 UTRECHT
Centraal gelegen informatie over de buurt
Aantal inwoners
In de gemeente
61.868
Leeftijd
in percentages van totaal
Huishoudsamenstelling
in percentages van totaal
35%
20% NL
26%
20% NL
38%
20% NL