Ga naar inhoud

Te koop: appartement Elandweide 15 3437 CL Nieuwegein

Moen Garantiemakelaars
Contact me

Verkocht

€ 385.000,- k.k.

In de geliefde woonomgeving van Batau-Noord mogen wij deze modern afgewerkte maisonnette / bovenwoning aanbieden. Het appartement heeft een zonnig overdekt terras aan de voorzijde met vrij uitzicht op pleintje en groen. Daarnaast heeft het appartement een goed balkon aan de achterzijde.
Het geheel is gelegen in de nabijheid van winkels, scholen, openbaar vervoer en recreatiegebied Nedereindse plas met skibaan.

-Woonoppervlakte: 116 m2
-Bouwjaar 1977
-Slapende vve aanwezig

Indeling:
Begane grond
Modern afgewerkte en overdekte entree, vernieuwde meterkast, fietsenberging, royale hal met bergkast en trapopgang.

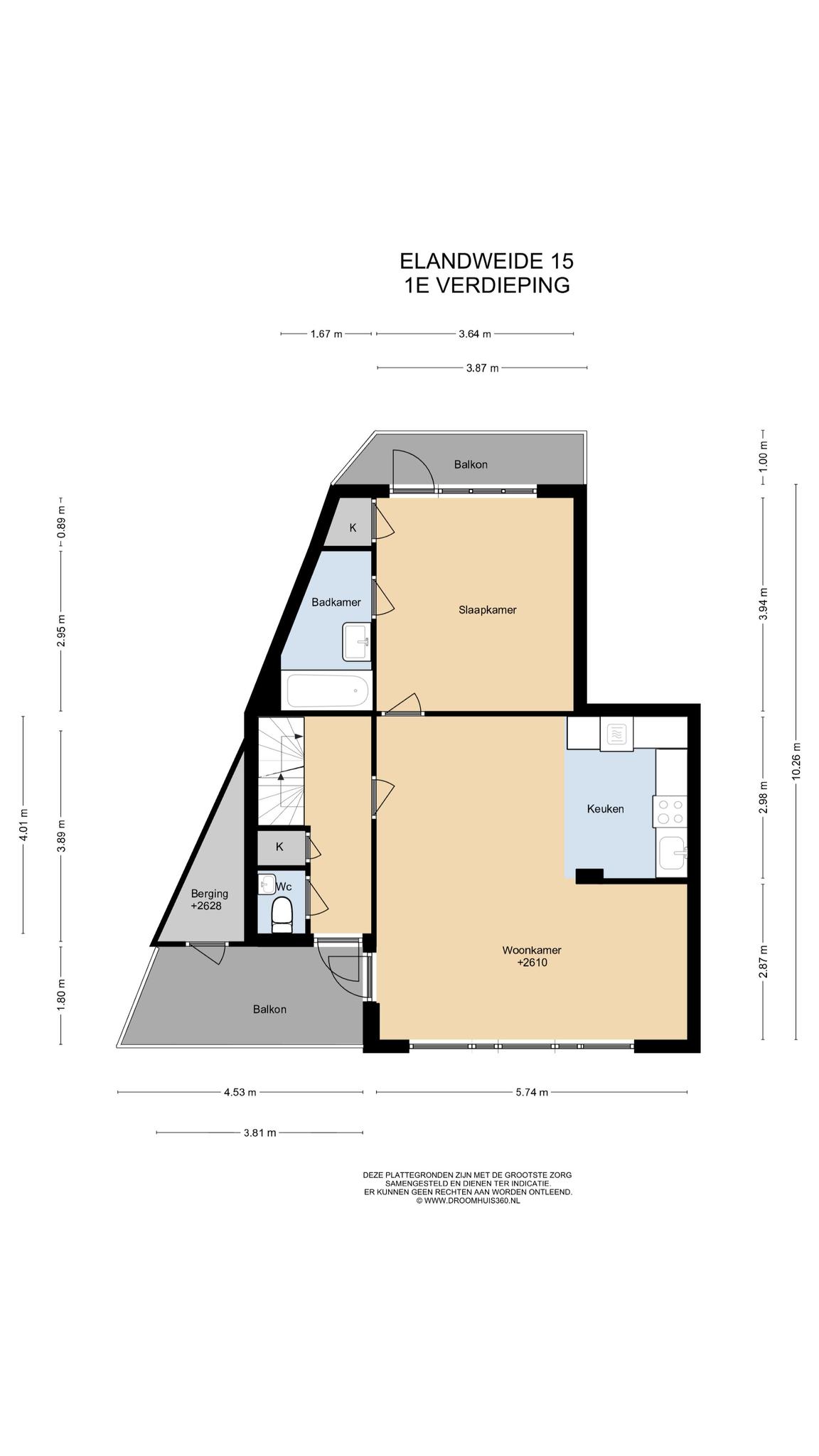
Eerste verdieping
Overloop met ruime bergkast, toilet met fonteintje en toegang tot het terras aan de voorzijde. Ruime en sfeervolle woonkamer welke is voorzien van een fraaie pvc vloer (visgraat stuctuur) en geniet van een breed raamoppervlak welke voor veel lichtinval zorgt. Via de woonkamer is eveneens het terras bereikbaar. Het terras is gelegen aan de voorzijde en geniet van vrij uitzicht. Op het terras is een berging aanwezig. Het appartement heeft een moderne open keuken met inbouwapparatuur, te weten: vaatwasser, inductie kookplaat, afzuigkap, koel-/vriescombinatie en combimagnetron. Via de woonkamer is de eerste slaapkamer bereikbaar. Via de slaapkamer is het 2de balkon bereikbaar. Aangrenzend treft u de moderne badkamer met ligbad en vaste wastafel.

Tweede verdieping
Overloop, ruime was-, berg- en kledingruimte voorzien van Velux dakraam, eveneens zijn daar de aansluitingen voor wasmachine en droger en opstelplaats cv-ketel (nieuw 2024) aanwezig. Op de verdieping treft u 2 royale slaapkamers met Velux dakramen en inloopkast in een van de slaapkamer.

Oplevering in overleg

Bijzonderheden:
– Modern afgewerkt appartement
– Er is gebruik gemaakt van onderhoudsvriendelijke materialen
– 3 slaapkamers aanwezig
– 2 balkons aanwezig
– Cv ketel 2024
– De woning is geheel voorzien van dubbel glas en beschikt over veel bergruimte
– Woning maakt onderdeel uit van een slapende Vereniging van Eigenaars

Interesse in dit huis? Schakel direct uw eigen NVM-aankoopmakelaar in.
Uw NVM-aankoopmakelaar komt op voor uw belang en bespaart u tijd, geld en zorgen.
Adressen van collega NVM-aankoopmakelaars in Nieuwegein vindt u op Funda.

  • 116 m2
  • 3

Features Elandweide 15

Overdracht

Vraagprijs€ 385.000,- k.k.
AanvaardingIn overleg

Oppervlaktes en inhoud

Woonoppervlakte116 m2
Inhoud421 m3

Bouw

SoortMaisonnette
BouwvormBestaande bouw
Bouwjaar1977
Dak typeSamengesteld dak
IsolatievormenDubbelglas
EnergielabelB

Indeling

Aantal verdiepingen2
Aantal kamers5
Aantal slaapkamers3
Aantal badkamers1

Monthly costs

Location Elandweide 15

Voorzieningen

Centraal gelegen informatie over de buurt

Aantal inwoners

In de gemeente

61.868

Leeftijd

in percentages van totaal

Huishoudsamenstelling

in percentages van totaal

34%

20% NL

32%

20% NL

34%

20% NL

Comparable listings